Размер:
AAA
Цвет: CCC
Изображения Вкл.Выкл.
Обычная версия сайта

Зал «Территория Z»

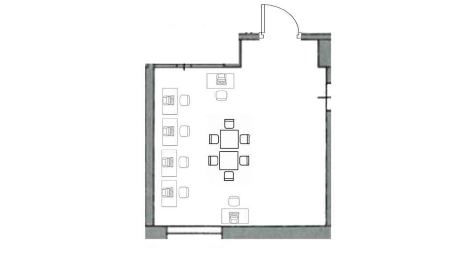
схема зала

площадь 31 м²

количество мест 10 мест

вместимость до 10 человек

этаж цокольный этаж

900 ₽/час 

О помещении:

Зал находится на территории молодежного центра «БиблиоДвиж».

Компактное помещение квадратной формы с одностворчатой дверью. Вместимость – до 10 человек. Оснащено рабочими местами (стол + стул) с персональными компьютерами, также компьютером для спикера и телевизором для трансляции мультимедийных продуктов. Есть возможность поставить флипчарт, а также подключить дополнительное оборудование.

Подойдет для культурных, просветительских, досуговых мероприятий (мастер-классов, встреч, презентаций, тренингов, лекций, круглых столов, деловых встреч) в малых группах.

По вопросам можно связаться по телефону 8 (8152) 44-27-26

Оборудование:

Можно выбрать при оформлении заявки:

  • Круглый стол – бесплатно (1 шт.)
  • Стол одноместный – бесплатно (2 шт.)
  • Стулья – бесплатно (10 шт.)
  • Флипчарт – бесплатно (по запросу)
  • Рабочее место с персональным компьютером – 300 ₽/час/1 ПК (5 шт.)
  • Телевизор ЖК 42" (106 см) LED Samsung UE42F5000AK на стене – 300 ₽/час (1 шт.)
  • Рабочее место с персональным компьютером (для спикера) – бесплатно (1 шт.)

Характеристики ПК: Процессор: Intel Core i7-9700KF, Материнская плата: Gigabyte Z390 D, ОЗУ: 16 GB DDR4, Видеокарта: NVIDIA GeForce RTX 2060, Жесткий диск: WDC WD10EZEX-60WN4A1 1000 GB, ОС: Windows 10 Pro

Дополнительное оборудование:

  • Микрофон ручной – 300 ₽/час/1 шт. (2 шт.)
  • Веб-камера – 300 ₽/час (1 шт.)
  • Тренога для камеры – бесплатно (1 шт.)
  • Презентер – бесплатно (1 шт.)

Удобства:

  • Розетки в помещении
  • Интернет проводной
  • Интернет беспроводной (Wi-Fi с авторизацией) на этаже
  • Зона кафе на этаже
  • Кулер на этаже
  • Гардероб на этаже
  • Туалет на этаже
  • Вендинговый аппарат на этаже
  • Кофейный аппарат на этаже

Услуги:

  • Интерактивное оборудование
  • Звуковое оборудование
  • Техническая поддержка

Инклюзивность:

Приспособленность помещения для людей с ограниченными возможностями здоровья.

  • Парковка для инвалидов
  • Туалет для инвалидов (на этаже)
  • Кресло-коляска – Приспособлено
  • Костыли – Приспособлено
  • Нарушение зрения – Приспособлено
  • Нарушение слуха – Приспособлено

Правила:

  • Можно еду с собой
  • Можно напитки с собой
  • Можно с животными
  • Доступ к помещению до начала аренды

Заказать помещение


Портал Library.Ru www.positivecontent.ru Рейтинг@Mail.ru

© 2001-25 Мурманская областная детско-юношеская библиотека

Создание и поддержка сайта — Murman.ru